A Restored Casale with Valley Views
This restored Italian farmhouse offers an authentic escape in Pianello Val Tidone. The home is defined by its connection to the landscape, with sweeping valley views and a 15-meter pool. Set in Emilia-Romagna, it provides a private base for exploring Italy’s "Food Valley" and accommodates up to seven guests in three bedrooms with en-suite bathrooms.
This casale was brought back to life with a deep respect for its original structure and history. The restoration focused on authenticity, creating a home that feels both timeless and deeply connected to the Emilian countryside. Inside, the home balances rustic character with modern comfort. The main living space contains a fireplace and a piano, and the home is equipped with a full kitchen.
An impressive 15-meter pool provides a focal point for long summer days. Adjacent to the house, a shady porch is furnished for dining alfresco.
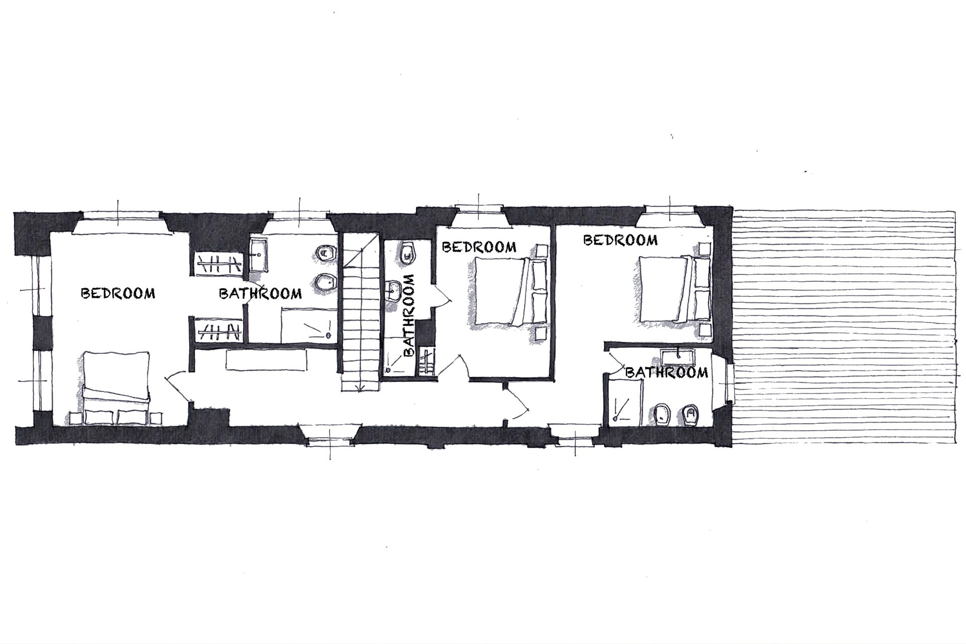
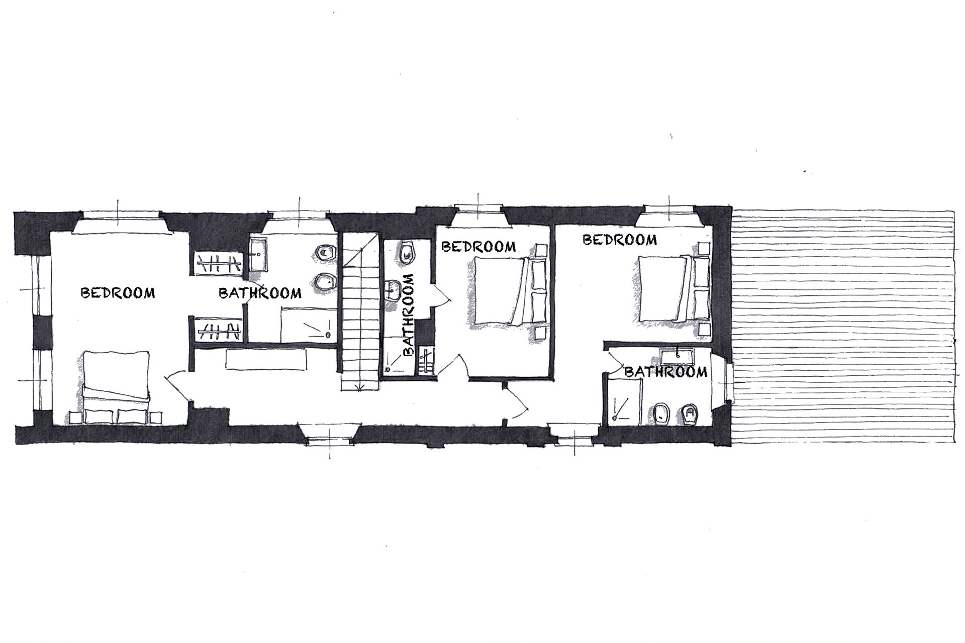
Layout
This vacation home for rent in Pianello Val Tidone sleeps up to seven guests. The casale offers three bedrooms, all with private en-suite bathrooms. There is also a convenient half-bath, for a total of 3.5 baths. There is a pool terrace for daytime lounging.
Good to know
A car is essential for exploring the region and accessing the property. The casale is reached via a 20-kilometer country road, and the home is 80 kilometers from Milan and 40 kilometers from Piacenza. Three parking spaces are available on the premises.
Amenities and services
15-meter pool, kitchen, wifi, free parking on premises, washer, indoor fireplace, piano
Around
Set in Italy’s "Food Valley," Emilia-Romagna, the casale is a gateway to culinary and cultural discovery. The local town of Pianello Val Tidone (5km) offers traditional delicacies like coppa and handmade pasta. Just 40km away is Piacenza. For a day trip, explore the medieval fortress of Rocca d'Olgisio or visit the region’s wineries, famous for sparking Gutturnio. The Val Tidone’s landscape is ideal for hiking and cycling, offering a deep dive into the Italian countryside. A car is necessary to best explore the area.
Location
Pianello Val Tidone, Emilia-Romagna, Italy. Nearest airports: Milan Linate (LIN) or Milan Malpensa (MXP) (80km / 1.5–2 hour drive)
Best time to visit
May to October































































